Listing Tools

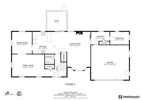
Discover this spacious 4-bedroom, 2.5-bath home offering over 3,200 sq ft in one of Bangor's most desirable neighborhoodsChurch Woods. Designed for comfortable living and entertaining, the open-concept ''great room'' features an eat-in kitchen with breakfast bar, new stainless steel appliances, granite countertops, updated ceiling, and a cozy family room warmed by a Vermont Castings gas stove on a brick hearth. Atrium doors open to a 3 season sunroom with a two-tier deck overlooking the backyardperfect for relaxing or gatherings. A stylish new barn door leads from the great room to the mudroom, garage entry, and a private back office. The first floor also includes a formal living room, dining room, and a half bath. Upstairs, you'll find four bedrooms, including a spacious 1419 primary suite complete with a walk-in closet, barn door accent, and a beautifully renovated bath featuring a custom shower. A large 1330 bonus room adds flexible space for hobbies, playroom, or media area, and the updated common bath adds extra convenience. Additional highlights include tile and new hardwood flooring throughout, all-new lighting on the first floor, a whole-house generator, a two-car garage, and a large open walk-out basement complete with a sauna. This well-cared-for home offers the perfect blend of modern updates and timeless charm in a prime Bangor location.

Property Details of 88 Skyline Road

Property Details

Interior Features

Exterior Features

Utilities and Appliances

Map Location

Listing data is derived in whole or in part from the Maine IDX & is for consumers' personal, non commercial use only. Dimensions are approximate and not guaranteed. All data should be independently verified. ©2026 Maine Real Estate Information System, Inc. All Rights Reserved. equal opportunity housing logo   Privacy Policy

Plowman Realty Group participates in ©2026 Maine Listings Internet Data Exchange program, allowing us to display other Maine IDX Participants' listings. This website does not display complete listings. Certain listings of other real estate brokerage firms have been excluded. Mortgage figures are estimates. Check with your bank or proposed mortgage company for actual interest rates. This product uses the FRED® API but is not endorsed or certified by the Federal Reserve Bank of St. Louis.

Hi there! How can we help you?

Contact us using the form below or give us a call.

Send Us A Message:

I agree to receive marketing and customer service calls and text messages from Plowman Realty Group. To opt out, you can reply 'stop' at any time or click the unsubscribe link in the emails. Consent is not a condition of purchase. Msg/data rates may apply. Msg frequency varies. Privacy Policy.

Do not fill in this field:

This site is protected by reCAPTCHA and the Google Privacy Policy and Terms of Service apply.

Hi there! How can we help you?

Contact us using the form below or give us a call.

Send Us A Message:

Do not fill in this field:

This site is protected by reCAPTCHA and the Google Privacy Policy and Terms of Service apply.

Hi there! How can we help you?

Contact us using the form below or give us a call.

Send Us A Message:

Do not fill in this field:

This site is protected by reCAPTCHA and the Google Privacy Policy and Terms of Service apply.

Do not fill in this field:

This site is protected by reCAPTCHA and the Google Privacy Policy and Terms of Service apply.

Do not fill in this field:

This site is protected by reCAPTCHA and the Google Privacy Policy and Terms of Service apply.

Do not fill in this field:

This site is protected by reCAPTCHA and the Google Privacy Policy and Terms of Service apply.

$

Do not fill in this field:

This site is protected by reCAPTCHA and the Google Privacy Policy and Terms of Service apply.